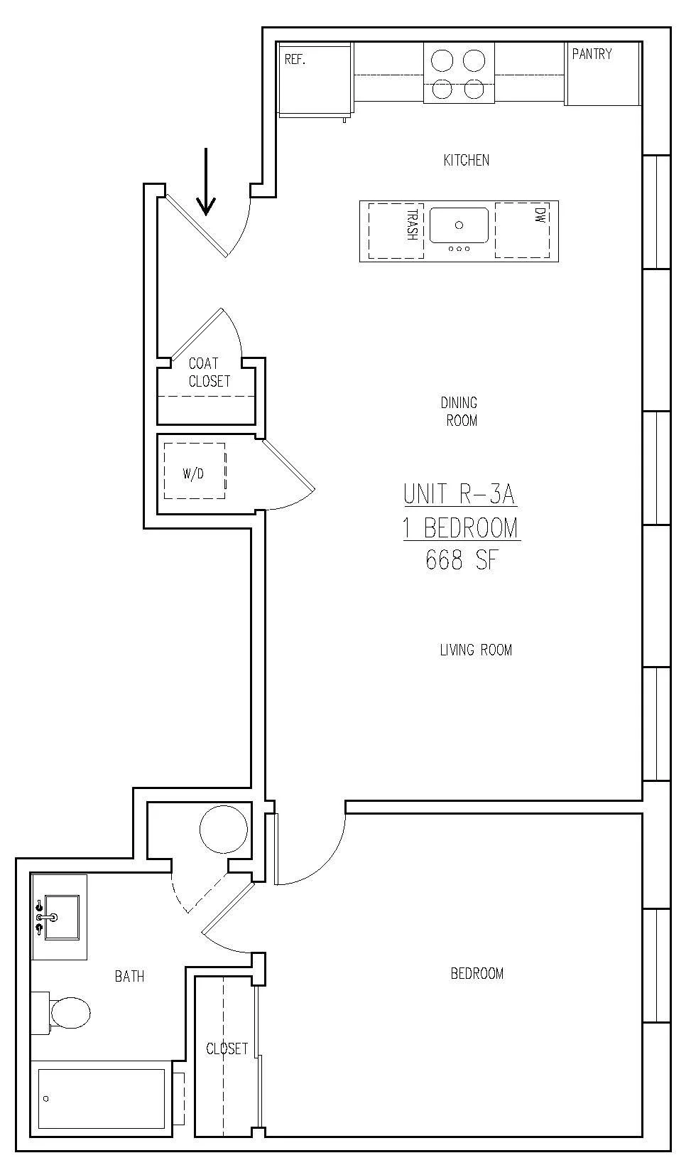
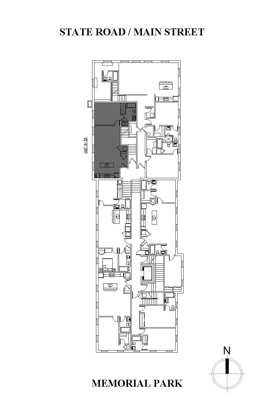
Residence
3A
__________________
FLOOR 3
1 BED
1 BATH
668 SQ FT
__________________
All dimensions are approximate and subject to construction variances
4 State Road
Vineyard Haven, MA 02566
__________________
FLOOR 3
1 BED
1 BATH
668 SQ FT
__________________
All dimensions are approximate and subject to construction variances
4 State Road
Vineyard Haven, MA 02566