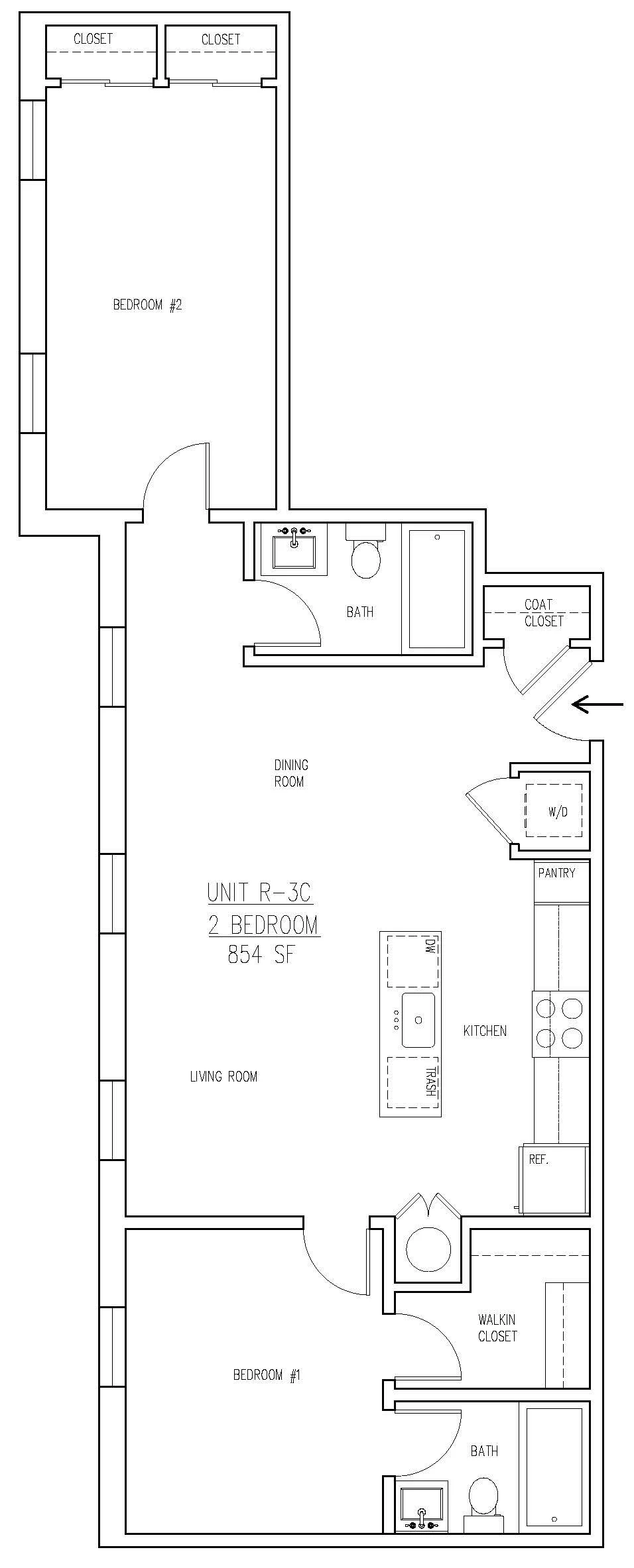
Residence
3C
__________________
FLOOR 3
2 BED
2 BATH
854 SQ FT
__________________
All dimensions are approximate and subject to construction variances
4 State Road
Vineyard Haven, MA 02566
__________________
FLOOR 3
2 BED
2 BATH
854 SQ FT
__________________
All dimensions are approximate and subject to construction variances
4 State Road
Vineyard Haven, MA 02566